Zwei Monate nach dem Spatenstich - so wird der neue Feuerwehrstützpunkt aussehen
Im Juni dieses Jahres war Spatenstich zum Bau des neuen Feuerwehrstützpunkts an der Burgunderstrasse. Das rund 13.8 Mio teure Projekt beim Standort Tioleyres soll im Oktober 2019 fertiggestellt sein.
Im Juni dieses Jahres war Spatenstich zum Bau des neuen Feuerwehrstützpunkts an der Burgunderstrasse. Das rund 13.8 Mio teure Projekt beim Standort Tioleyres soll im Oktober 2019 fertiggestellt sein.
Begonnen mit der Projektierung eines neuen Stützpunktes habe man im 2012, kurz nach Gründung des "Gemeindeverband Feuerwehrverband Region Murten". Durch die Fusion von zehn Ortsfeuerwehren entstand eine der grössten Feuerwehren des Kantons Freiburg. Laut Nachfrage beim Kommandant Claudio Mignot, verlaufe nach den ersten zwei Monaten alles nach Plan. Sie hätten anfangs gehofft, bei den Aushubarbeiten nicht plötzlich auf eine römische Vase oder anderes zu treffen, da laut Archäologen die Chance bestanden hätte, Fundstücke aus der Römerzeit zu entdecken. Deshalb schauten diese bei den Bauarbeitern anfangs über die Schulter.
Aktuelles Projekt "Feuerwehrzentrum Tioleyres"
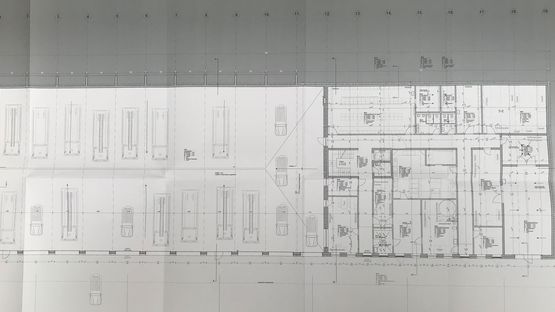
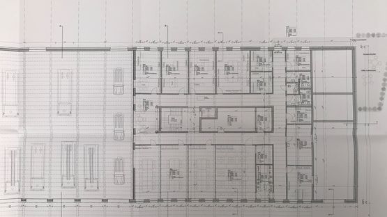
Das neue Zentrum an der Hanglage wird aus zwei Teilen bestehen: Der Fahrzeughalle, welche Platz für 22 Fahrzeuge bieten wird und dem zweigeschossigen, nach Minergie-Standards geplanten Personaltrakt. Im Obergeschoss des Gebäudes befinden sich Büros, Sitzungszimmer und diverse andere Räumlichkeiten, wie beispielsweise ein Fitness- und Pausenraum.
Da Baustellen Risiken Bergen, welche zu Arbeitsunfällen führen können, hat die Feuerwehr gestern, am Montag, dem 20. August, gleich einen Rettungseinsatz auf ihrem neuen Platz geübt.
Weiterer Artikel über die Feuerwehr: Deshalb braucht es einen neuen Feuerwehrstützpunkt - der Kommandant der Feuerwehr Region Murten erklärt